NEUBAU
EICHSTRASSE 25
WOHNEN IN ALT-LAATZEN
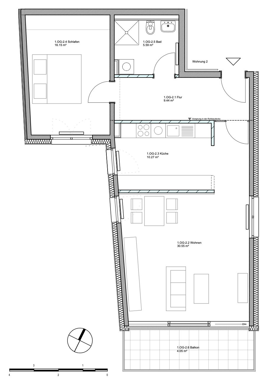
Wohnung: 2
Zimmer: 2
Wohnfläche: ca. 76,00 m²
Lage: 1. Obergeschoss Nr. 1
Ausstattung:
- sonniger Balkon Richtung Süden mit Zugang vom Wohnzimmer
- hochwertiger Bodenbelag in allen Wohnräumen
- bodengleiche Dusche im Badezimmer
- Waschmaschinen- u. Trocknerabstellplatz im Bad
- Gegensprechanlage mit Türöffner
Konditionen:
Grundmiete: 950,00 €
Betriebskosten: 135,00€
Heizkosten: 76,00 €
Gesamtmiete: 1.161,00 €
Mitgliedschaft:
Bei Abschluss des Mietvertrages sind zwei Genossenschaftsanteile von insgesamt 500 € zu zeichnen.
Dieses Angebot ist unverbindlich. Irrtum vorbehalten. Der Grundriss ist unverbindlich und dient der Information.


